Il Container Doppio Ufficio “Standard” di CASE CONTAINER ITALIA è una soluzione modulare progettata per offrire uno spazio di lavoro o di stoccaggio pratico, confortevole e adattabile a diverse esigenze. Con una superficie di 29,4mq, questo container è perfetto per essere utilizzato in cantieri edili, ambienti industriali, punti vendita o in qualsiasi contesto che richieda uno spazio ufficio temporaneo o permanente. Grazie all’isolamento termico e acustico, alle predisposizioni per impianti elettrici, idraulici e di riscaldamento, e alla possibilità di personalizzazione, questo container rappresenta una soluzione versatile e di alta qualità.
Caratteristiche Tecniche:
-
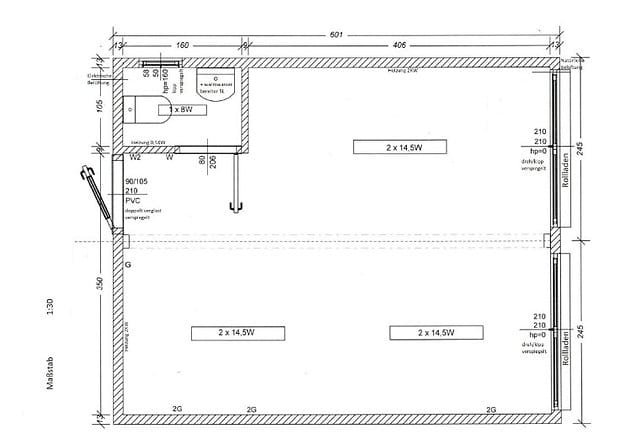
Dimensioni:
-
Lunghezza: 6010 mm
-
Larghezza: 4900 mm
-
Altezza: 2750 mm
-
Altezza Interna: 2500 mm
-
-
Superficie: 29,4 mq
-
Struttura:
-
Telaio di Trasporto: Profili curvati a freddo in lamiera zincata da 0,5 mm
-
Tetto: Lamiera grecata zincata T35 da 0,7 mm con isolamento in lana minerale da 100 mm
-
Copertura: Placca OSB da 15 mm, finitura in PVC
-
Sistema di Drenaggio: Evacuazione dell’acqua dal tetto tramite scarichi FI50 situati negli angoli
-
-
Pareti Interne:
-
Materiali: Lamiera grecata zincata T6, isolamento in lana minerale da 100 mm, finitura in legno o pannelli in PVC
-
Pareti Divisorie: Struttura in legno con isolamento acustico in lana, rivestite in placca OSB da 12 mm o pannelli in PVC
-
-
Pavimento:
-
Composizione: Lamiera zincata da 0,5 mm, isolamento in lana minerale da 100 mm, placca OSB da 22 mm, rivestimento in PVC
-
-
Porte e Finestre:
-
Porta Esterna: Porta in vetro da 900 mm x 2060 mm
-
Finestre: Telaio in PVC con doppi vetri, dimensioni 2100 mm x 2100 mm
-
Equipaggiamenti Standard:
-
Riscaldamento:
-
3 radiatori elettrici con fusibili separati
-
-
Illuminazione:
-
4 lampade a LED da 14W
-
-
Impianti Sanitari:
-
1 bagno con lavabo e WC
-
1 scaldabagno
-
-
Ventilazione:
-
Ventilazione naturale: 1 unità
-
Ventilazione elettrica: 1 unità
-
-
Elettricità:
-
Linea elettrica con canaline a intonaco
-
Prese elettriche (YDY 3 x 2,5 mm), sistemi di illuminazione (JY 3 x 1,5 mm)
-
Quadro elettrico in PE con scatola ermetica
-
Distribuzione principale RG-Caie con fusibile individuale per circuito
-
2 contatori elettrici
-
Prese 230V individuali
-
-
Altre Caratteristiche:
-
Scarico completo delle acque reflue (diametro 110 mm)
-
Alimentazione idrica in PE32 con valvola di arresto
-
Tubi in PVC completamente saldati
-
Opzioni di Personalizzazione:
I container possono essere attrezzati e arredati in base alle specifiche esigenze del cliente, trasformandosi in semplici uffici, locali aziendali o integrandosi in complessi più ampi. È possibile aggiungere accessori supplementari come un serbatoio di ritenzione e una piattaforma di passaggio per migliorare ulteriormente il comfort e la funzionalità del modulo.
Vantaggi per il Cliente:
-
Soluzione Pronta all’Uso: Container già predisposto per l’utilizzo immediato come ufficio o spazio di stoccaggio.
-
Isolamento Termico e Acustico: Garantisce un ambiente confortevole e silenzioso.
-
Personalizzazione: Ampia possibilità di adattare il container alle proprie esigenze specifiche.
-
Versatilità: Adatto a diversi contesti e utilizzi, dai cantieri edili agli spazi commerciali.
-
Impianti Completi: Dotato di tutti gli impianti necessari per un utilizzo immediato.
Garanzia e Servizio Post-Vendita:
CASE CONTAINER ITALIA offre una garanzia di 2 anni sul Container Doppio Ufficio – 29,4mq. Il nostro servizio clienti è a disposizione per qualsiasi necessità di assistenza post-vendita, garantendo un supporto rapido ed efficiente.
