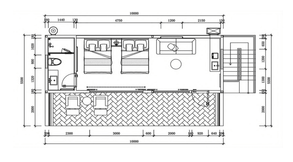
La Appel Cabin VL-PB03 è una capsule house di lusso progettata per offrire un’esperienza di soggiorno esclusiva. Con i suoi 35 mq di superficie, può ospitare comodamente da 4 a 8 persone, rendendola perfetta per hotel di alta gamma, resort e glamping di lusso. L’ampio utilizzo di vetro temperato crea un ambiente luminoso e offre una vista panoramica mozzafiato. Dotata di tecnologie smart home e finiture di pregio, la Appel Cabin VL-PB03 rappresenta la scelta ideale per chi desidera offrire ai propri ospiti un’esperienza unica e indimenticabile, immersa nel comfort e nel design.
Caratteristiche Tecniche:
Dimensioni:
Lunghezza: 10 metri
Larghezza: 3.5 metri
Altezza: 3.2 metri
Superficie: 35 mq
Capacità: 4-8 persone.
Materiali:
Struttura: Telaio in acciaio galvanizzato per la massima resistenza e durabilità.
Rivestimento esterno: Lega di alluminio fluorocarbonato, resistente agli agenti atmosferici e alla corrosione.
Costruzione: Impermeabile e resistente all’umidità.
Finestre e Porte:
Finestre: Vetro temperato a doppia camera per un eccellente isolamento termico e acustico.
Isolamento delle stanze in vetro temperato.
Lucernario: Vetro stratificato temperato a doppia camera per un’illuminazione naturale ottimale.
Porta d’ingresso: Porta a battente laterale in acciaio inox con sistema di chiusura sicuro.
Interni:
Pareti e soffitto: Modulari integrati per un design elegante e raffinato.
Pavimento: Composito di pietra e plastica, resistente e di facile manutenzione.
Bagno: Pavimento in marmo/piastrelle, porta in vetro temperato, lavabo, specchio, WC, rubinetteria, doccia e piletta di scarico.
Impianti:
Illuminazione: Sistema completo di illuminazione a LED.
Impianto idraulico ed elettrico: Completo e a norma.
Climatizzazione: Climatizzatore incluso per un comfort ottimale in ogni stagione.
Tende: Tende oscuranti incluse per garantire privacy e controllo della luce.
Arredamento:
Tavolo da bar e mobile d’ingresso inclusi.
Unità di Controllo:
Accesso: Interruttore a scheda.
Controllo intelligente: Gestione integrata di luci, tende e scenari preimpostati.
Controllo vocale: Sistema di controllo vocale intelligente per una gestione domotica avanzata.
Serratura: Serratura intelligente per la massima sicurezza.
Accessori Inclusi:
Gradino d’ingresso.
Piedini di supporto.
Golfari di sollevamento/Attacchi/Imballaggio per il trasporto.
Vantaggi per il Cliente:
Esperienza di Lusso: Design esclusivo e finiture di pregio per un soggiorno indimenticabile.
Ampiezza degli Spazi: 35 mq di superficie per ospitare comodamente fino a 8 persone.
Luminosità e Vista Panoramica: Ampie vetrate per un ambiente luminoso e una vista mozzafiato.
Tecnologia Smart Home: Controllo intelligente degli ambienti per un comfort e una sicurezza superiori.
Privacy Garantita: Isolamento delle stanze in vetro temperato e tende oscuranti per la massima riservatezza.
Durabilità e Resistenza: Costruita con materiali di alta qualità, resistenti agli agenti atmosferici.
Versatilità di Utilizzo: Perfetta per hotel di lusso, resort, glamping e villaggi turistici esclusivi.
Conformità alle Normative: Rispetta gli standard di sicurezza e qualità.
Facilità di Trasporto e Installazione: Dotata di accessori per il trasporto e piedini di supporto per l’installazione.
Opzioni e Personalizzazione:
Colori: Disponibile in diverse varianti di colore per la struttura esterna. Contattaci per scoprire tutte le opzioni.
Arredamento interno: Possibilità di personalizzare l’arredamento interno per adattarlo allo stile del proprio hotel o resort.
Domotica Avanzata: Possibilità di integrare sistemi di domotica aggiuntivi per un’esperienza ancora più esclusiva.
Istruzioni di Utilizzo e Manutenzione:
La Appel Cabin VL-PB03 è progettata per una manutenzione minima. Si consiglia di pulire regolarmente le superfici esterne con prodotti specifici per alluminio e vetro. Verificare periodicamente il corretto funzionamento degli impianti e dei sistemi di controllo. Per interventi di manutenzione straordinaria, contattare il servizio assistenza.
Garanzia e Servizio Post-Vendita:
CASE CONTAINER ITALIA offre una garanzia di 2 anni su tutti i componenti della Appel Cabin VL-PB03. Il nostro servizio clienti è a disposizione per qualsiasi necessità di assistenza post-vendita, garantendo un supporto rapido ed efficiente.





