La casa prefabbricata mobile ed estensibile Bastone da 19×20 piedi è la soluzione ideale per chi cerca un alloggio temporaneo o uno spazio ufficio portatile. Dotata di toilette integrata, è progettata per essere facilmente trasportabile e configurabile, rendendola perfetta per viaggi frequenti o utilizzi temporanei. Grazie al suo montaggio rapido e alla decorazione interna già completata, offre comfort e praticità in uno spazio compatto ma funzionale.
Caratteristiche Tecniche:
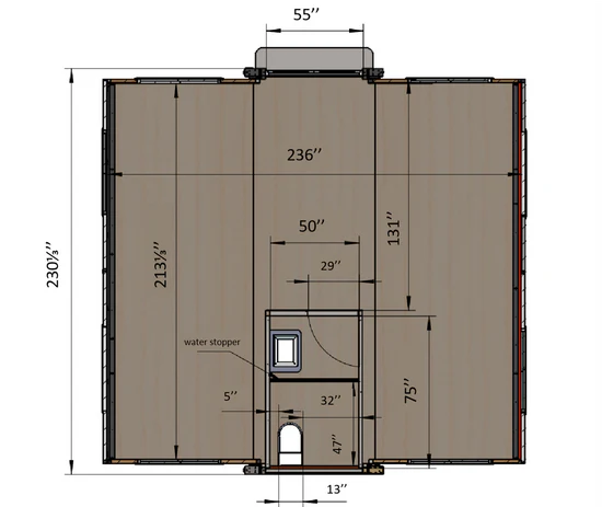
- Dimensioni Esterne:
- Lunghezza: 6,14 m (20,14’)
- Larghezza: 6,195 m (20,32’)
- Altezza: 2,53 m (8,3’)
- Spazio Interno: 32,5 m² (349,7 ft²)
- Altezza Interna: 2,27 m (7,45’)
- Porte:
- Porta principale: 1,96 m x 0,72 m (6,43’ x 2,36’)
- Seconda porta: 2,045 m x 1,395 m (6,71’ x 4,58’)
- Finestre:
- 0,5 m x 0,69 m (1,64’ x 2,26’)
- 0,8 m x 1,2 m (2,62’ x 3,94’)
- Peso del Prodotto: 3345 kg (7359 lbs)
- Materiali:
- Struttura: Acciaio
- Pareti e Soffitto: PSE
- Pavimento: Melamina e PVC vinilico
- Tubi: Entrata e uscita in PPR
- Carico del Vento: Fino a 70 mph (secondo le fondazioni e le condizioni specifiche).
Dotazioni e Funzionalità:
- Installazioni Elettriche:
- Ventilatore d’estrazione.
- Bagno Integrato:
- WC.
- Doccia con soffione.
- Lavabo con armadietto e specchio.
- Montaggio Facile:
- Sistema di assemblaggio in 5 semplici passaggi, pronto in 1 ora.
- Pareti estensibili che formano il tetto e i lati.
- Portabilità:
- Facile da trasportare e installare in diverse location.
- Completamente Prefabbricato: Decorazione interna completata, pronto all’uso.
- Versatilità: Ideale per alloggi temporanei, spazi ufficio, cabine di sorveglianza o strutture temporanee.
- Montaggio Rapido: Si monta in appena 1 ora con un processo semplice e intuitivo.
- Mobilità: Struttura progettata per essere facilmente spostata e configurata altrove.
- Comfort e Funzionalità: Dotata di bagno completo e spazio ben organizzato per soddisfare ogni esigenza.
- Isolamento Termico e Acustico: Mantiene una temperatura confortevole e garantisce tranquillità.
Utilizzi Ideali:
- Alloggio Temporaneo: Perfetta per cantieri, aree di emergenza o spazi di lavoro mobili.
- Uffici Portatili: Soluzione elegante e funzionale per uffici in movimento.
- Campeggi e Parchi: Adatta per soggiorni in ambienti naturali.
- Eventi o Mostre Temporanee: Ideale per installazioni temporanee o spazi di accoglienza.
Garanzia e Servizio Post-Vendita:
- Garanzia: 2 anni sulla struttura e sugli impianti principali.
- Supporto Tecnico: Disponibile per installazione, manutenzione e personalizzazioni.
- Lunga Durata: Materiali progettati per resistere a condizioni atmosferiche e utilizzi intensivi.


















