La casa prefabbricata mobile ed estensibile Bastone da 17×20 piedi è una soluzione ideale per chi cerca un alloggio temporaneo o uno spazio ufficio compatto e versatile. Dotata di toilette integrata, offre comfort e praticità ed è facilmente trasportabile, rendendola perfetta per chi si sposta frequentemente o necessita di una soluzione flessibile. L’assemblaggio rapido e la struttura robusta la rendono adatta a molteplici utilizzi, sia residenziali che industriali.
Caratteristiche Tecniche:
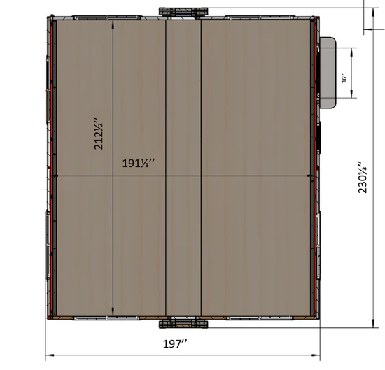
- Dimensioni Esterne:
- Lunghezza: 5,84 m (19,16’)
- Larghezza: 5,34 m (17,52’)
- Altezza: 2,53 m (8,3’)
- Spazio Interno: 26,5 m² (285,14 ft²)
- Altezza Interna: 2,27 m (7,45’)
- Porte:
- Dimensioni della porta: 1,99 m x 1,0 m (6,53’ x 3,28’)
- Finestre:
- Dimensioni: 0,5 m x 0,69 m (1,64’ x 2,26’) e 0,8 m x 1,2 m (2,62’ x 3,94’)
- Peso del Prodotto: 2725 kg (5995 lbs)
- Materiali:
- Struttura: Acciaio robusto per maggiore durabilità.
- Pareti e Soffitto: PSE (pannelli isolanti).
- Pavimento: Melamina e PVC vinilico.
- Tubi: Entrata e uscita in PPR.
Dotazioni e Funzionalità:
- Bagno Integrato:
- Toilette.
- Pommeau di doccia.
- Lavabo con armadietto e specchio.
- Ventilazione: Ventilatore d’estrazione incluso per mantenere l’aria fresca.
- Installazione Facile: Assemblaggio rapido, pronto in poche ore.
- Design Compatto: Ottimizzato per massimizzare lo spazio interno.
- Isolamento Termico: Materiali isolanti per comfort in ogni stagione.
- Struttura Robusta: Progettata per resistere a condizioni atmosferiche difficili.
- Completamente Prefabbricata: Consegnata pronta all’uso con tutti gli impianti già installati.
- Versatilità d’Uso: Adatta per alloggi temporanei, uffici, magazzini o spazi ricettivi.
- Portabilità: Facile da trasportare e installare in diverse location.
- Efficienza Energetica: Dotata di isolamento termico per ridurre il consumo energetico.
- Soluzione Economica: Costi contenuti e ottimo rapporto qualità-prezzo.
Utilizzi Ideali:
- Alloggi Temporanei: Perfetta per cantieri, aree di emergenza o soggiorni brevi.
- Spazi di Lavoro: Ideale per uffici mobili o zone operative temporanee.
- Magazzini Portatili: Perfetta per stoccaggio temporaneo di materiali e attrezzature.
- Strutture Ricettive: Adatta a campeggi, parchi o resort.
Garanzia e Servizio Post-Vendita:
- Garanzia: 2 anni su struttura e impianti principali.
- Supporto Tecnico: Assistenza disponibile per installazione e manutenzione.
- Durabilità: Progettata per utilizzi prolungati in ambienti variabili.













